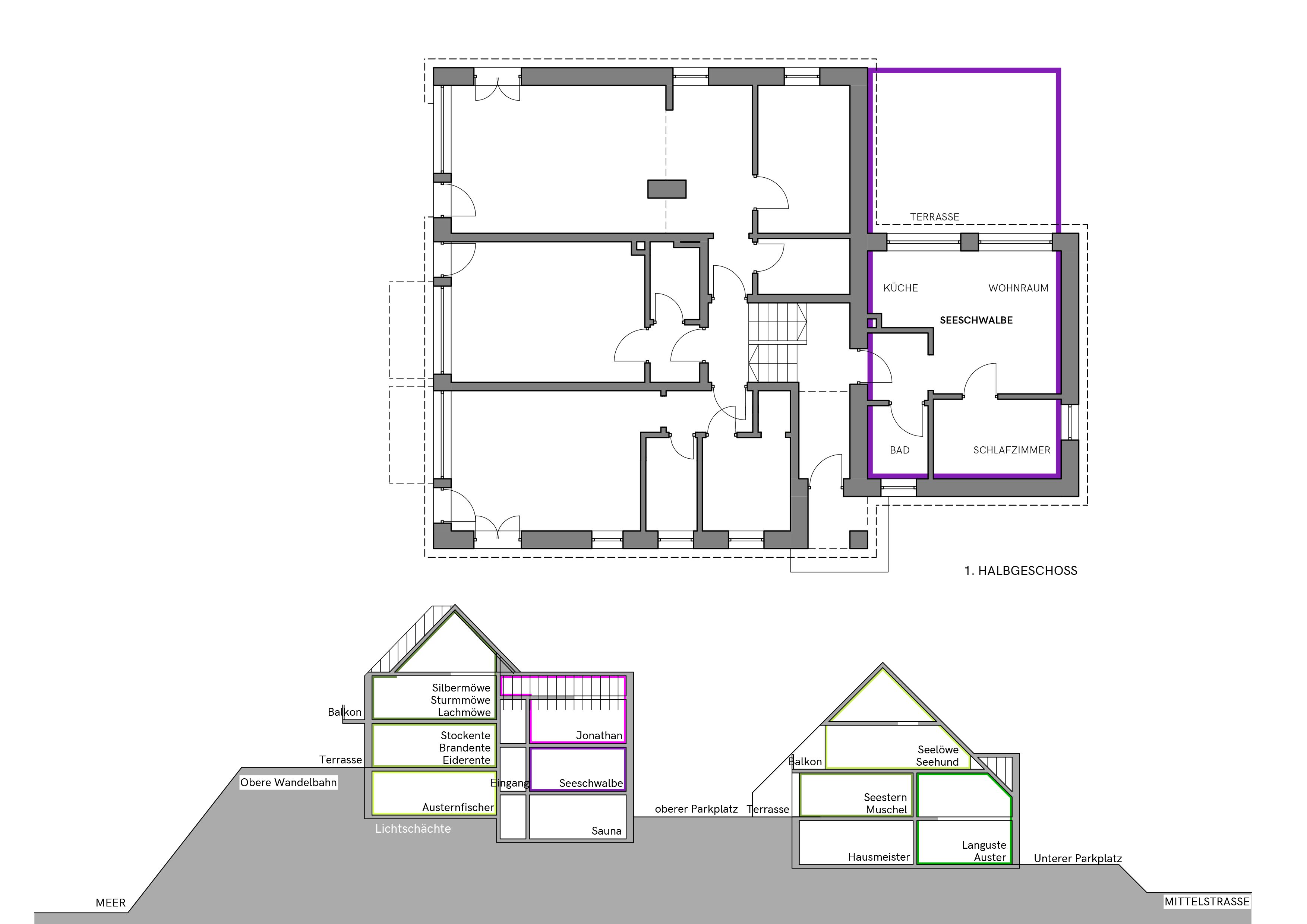
Seeschwalbe
Bis 4 Personen
- ca. 47 m², EG
- große West-Terrasse mit Strandkorb
- Schlafzimmer (Zwei Einzelbetten)
- Wohnzimmer (Schlafcouch)
Babybett möglich - Einbauküche mit Spülmaschine
- Mikrowelle
- Duschbad (Fön vorhanden)
Hauptsaison: 160,- €
Zwischensaison: 115,- €
Nebensaison: 75,- €









